Barendra Anams Home (Unit Type A)
- Bdt7,634,000
- Bdt5,500/sq ft
Description
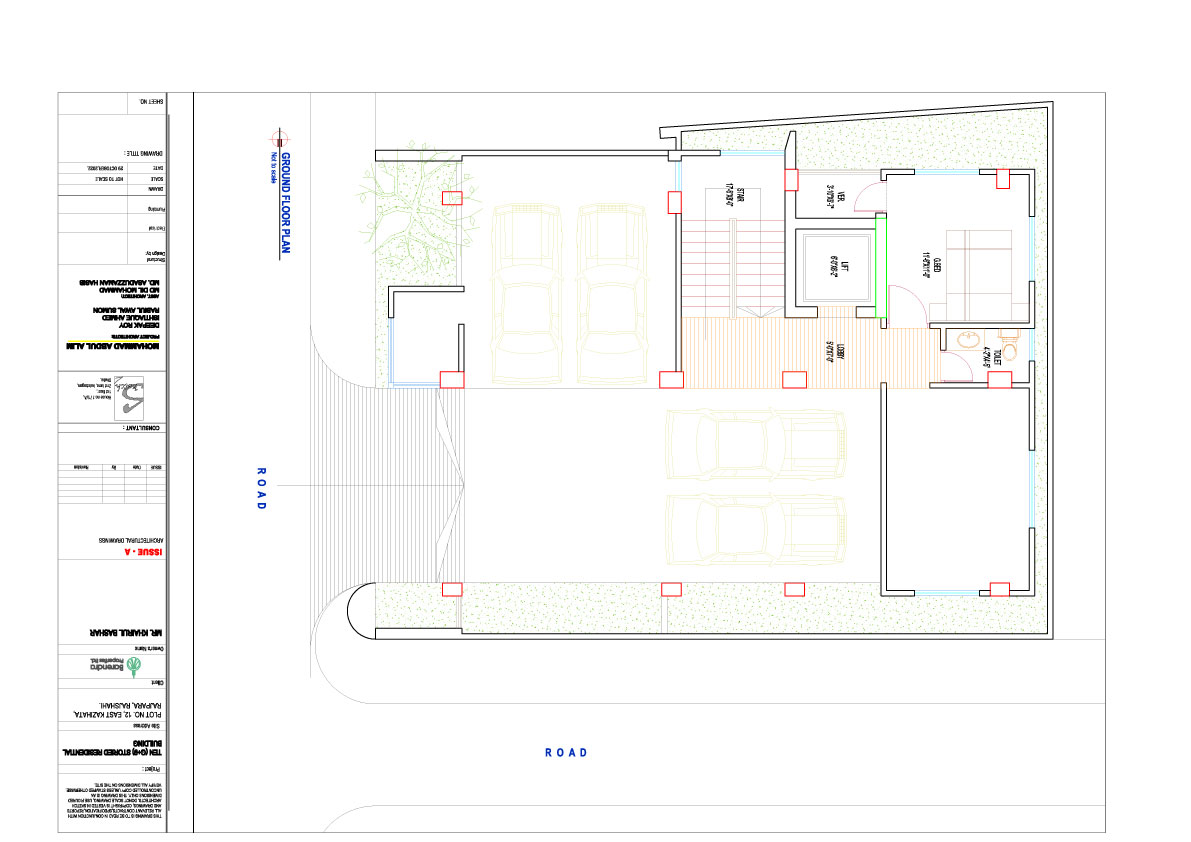
UNIT TYPE A — 1,388 SFT
Modern 3-Bedroom Family Apartment with Generous Living
Overview
Unit Type A (1,388 sft) is a thoughtfully planned 3-bedroom apartment designed for family living. The layout prioritizes an airy living/dining core with clear circulation, private sleeping zones, and outdoor verandas that increase daylight and natural ventilation.
Key features
-
Approx. 1,388 sft of well-proportioned living space
-
3 bedrooms: master bedroom plus two additional bedrooms suitable for children, guests or a home office
-
2 modern bathrooms positioned for privacy and convenience
-
Spacious living + dining arrangement ideal for family gatherings and entertaining
-
Separate kitchen with a practical work triangle and service access
-
Veranda/Balcony offering outdoor seating and fresh air
-
Twin-unit layout with efficient circulation & minimal corridor waste
-
Natural light and cross-ventilation from multiple aspects
Address
Open on Google Maps-
Address: ঘোষপাড়া মোড়, বোয়ালিয়া, রাজশাহী।
-
City: Rajshahi
-
State/county: Rajshahi
-
Zip/Postal Code: 6000
-
Area: Ghoshpara Mor, Boalia, Rajshahi.
-
Country: Bangladesh
Details
Updated on December 7, 2025 at 9:52 am-
Property ID BPL-Anams
-
Price Bdt7,634,000
-
Property Size 1388 sqft
-
Bedrooms 3
-
Bathrooms 2
-
Garage 1
-
Garage Size 200 SqFt
-
Year Built 2026
-
Property Type Apartment, Single Family Home
-
Property Status For Sale
Additional details
-
Deposit 30%
-
Last remodel year 2026
-
Additional Rooms: Guest Bath
-
Equipment Grill - Gas
Mortgage Calculator
-
Down Payment
-
Loan Amount
-
Monthly Mortgage Payment
-
Property Tax
-
Home Insurance
-
PMI
-
Monthly HOA Fees
Floor Plans
- Size: 1388 Sqft
Description:
Plan description. Lorem ipsum dolor sit amet, consectetuer adipiscing elit, sed diam nonummy nibh euismod tincidunt ut laoreet dolore magna aliquam erat volutpat. Ut wisi enim ad minim veniam, quis nostrud exerci tation ullamcorper suscipit lobortis nisl ut aliquip ex ea commodo consequat.
- Size: 1345 Sqft
- 543 Sqft
- 238 Sqft
- Price: Bdt1,600
Description:
Plan description. Lorem ipsum dolor sit amet, consectetuer adipiscing elit, sed diam nonummy nibh euismod tincidunt ut laoreet dolore magna aliquam erat volutpat. Ut wisi enim ad minim veniam, quis nostrud exerci tation ullamcorper suscipit lobortis nisl ut aliquip ex ea commodo consequat.









